
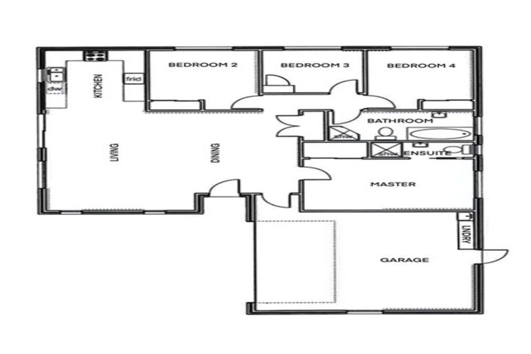
9 Ribbonwood Close, Te Kauwhata, 3710 is a Residential property built in 2010 with 4 bedrooms, 2 bathrooms and 2 parking spaces. The property is estimated to be valued in the range of $700,000 to $750,000.
The property last sold on 13 November 2020 for $675,000. It was sold by Riverlands Real Estate Ltd, (Licensed: Reaa 2008). On 1 October 2023, 9 Ribbonwood Close, Te Kauwhata, 3710 had a Rating Valuation with a Capital Value of $640,000, Land Value of $330,000 and Improvement Value of $310,000.
| Date | Type | Price | Agent/Agency |
|---|---|---|---|
| 2 Dec 2020 | Rented | $580 | |
| 13 Nov 2020 | SOLD | $675,000 | |
| 1 Oct 2020 | ASKING PRICE | $689,000 | Colin Sherrard of Riverlands Real Estate Ltd Mreinz, (Licensed: Reaa 2008) |
| 29 Jul 2015 | ASKING PRICE | $160,000 | Trevor Kenny of Property Brokers Ltd Matamata |
| 14 Jul 2015 | SOLD | $150,000 | |
| 29 Sep 2011 | ASKING PRICE | $170,000 | |
| 27 Jun 2007 | SOLD | $143,000 | |
| 21 May 2007 | SOLD | $140,000 |
Lot 37 Deposited Plan 391858
There are no similar properties in the area that are listed for sale or recently sold.