
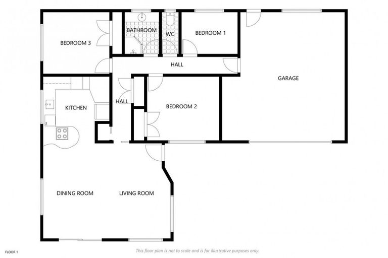
79 Barrett Street, Westown, New Plymouth, 4310 is a Residential property built in 2005 with 3 bedrooms, 1 bathroom and 2 parking spaces. The property is estimated to be valued in the range of $800,000 to $900,000.
The property last sold on 27 March 2009 for $378,000. It was sold by Harcourts, and took 63 days to sell. On 1 August 2025, 79 Barrett Street, Westown, New Plymouth, 4310 had a Rating Valuation with a Capital Value of $825,000, Land Value of $425,000 and Improvement Value of $400,000.
| Date | Type | Price | Agent/Agency |
|---|---|---|---|
| 30 Jan 2022 | BY NEGOTIATION | Price Not Disclosed | Sam Woods of Tall Poppy New Plymouth |
| 27 Mar 2009 | SOLD | $378,000 | Roland Lina of Harcourts |
| 24 Jan 2009 | ASKING PRICE | $270,000 | Roland Lina of Harcourts |
| 2 Dec 2004 | SOLD | $350,000 | |
| 18 Jun 2004 | SOLD | $135,300 | |
| 15 May 2003 | SOLD | $80,000 |
Lot 1 Deposited Plan 330516
There are no similar properties in the area that are listed for sale or recently sold.