
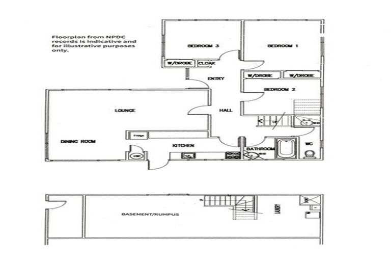
29 Maratahu Street, Westown, New Plymouth, 4310 is a Residential property built in 1973 with 3 bedrooms, 1 bathroom and 1 parking space. The property is estimated to be valued in the range of $500,000 to $550,000.
It is unknown when the property was last sold or how much it was sold for. On 1 August 2025, 29 Maratahu Street, Westown, New Plymouth, 4310 had a Rating Valuation with a Capital Value of $520,000, Land Value of $345,000 and Improvement Value of $175,000.
| Date | Type | Price | Agent/Agency |
|---|---|---|---|
| 5 Feb 2026 | Rented | $650 | The Rent Shop Taranaki of The Rent Shop Ltd |
| 28 Jul 2025 | BY NEGOTIATION | Price Not Disclosed | Stacey Adams of Re/Max Team Realty - New Plymouth, (Licensed: Reaa 2008) |
| 2 Oct 2020 | AUCTION | Price Not Disclosed | |
| 30 May 2008 | SOLD | $245,000 | Vickie Ashton of Remax |
| 26 Mar 2008 | ASKING PRICE | $275,000 | Vickie Ashton of Remax |
| 15 Dec 2007 | ASKING PRICE | $282,000 | Daniel McDonald of McDonald Re |
| 15 Feb 1996 | SOLD | $90,000 | |
| 29 Aug 1988 | SOLD | $57,000 | |
| 1 May 1981 | SOLD | $37,000 |
Lot 17 Deposited Plan 10231
There are no similar properties in the area that are listed for sale or recently sold.