
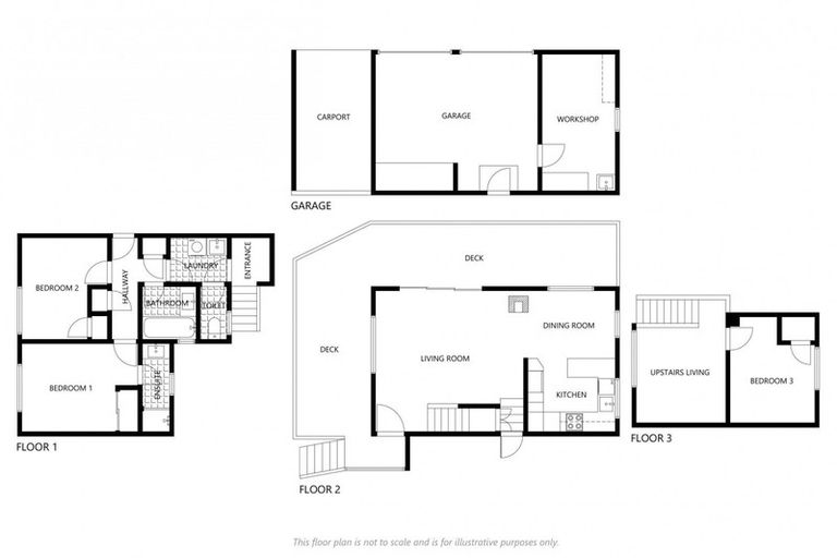
19c Kenmore Street, Westown, New Plymouth, 4310 is a Residential property built in 1977 with 3 bedrooms, 1 bathroom and 2 parking spaces. The property is estimated to be valued in the range of $750,000 to $800,000.
The property last sold on 25 September 2021 for $752,000. It was sold by Tall Poppy New Plymouth, and took 9 days to sell. On 1 August 2025, 19c Kenmore Street, Westown, New Plymouth, 4310 had a Rating Valuation with a Capital Value of $760,000, Land Value of $300,000 and Improvement Value of $460,000.
| Date | Type | Price | Agent/Agency |
|---|---|---|---|
| 25 Sep 2021 | SOLD | $752,000 | Delwyn McCurdy of Tall Poppy New Plymouth |
| 17 Sep 2021 | ENQUIRIES OVER | $685,000 | Delwyn McCurdy of Tall Poppy New Plymouth |
| 1 Jan 1930 | SOLD | $0 |
Lot 80 Deposited Plan 11920
There are no similar properties in the area that are listed for sale or recently sold.