
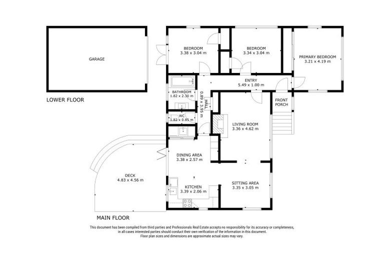
11 Waimea Street, Westown, New Plymouth, 4310 is a Residential property built in 1954 with 3 bedrooms, 1 bathroom and 1 parking space. The property is estimated to be valued in the range of $700,000 to $750,000.
The property last sold on 4 November 2025 for $660,000. It was sold by Professionals Real Estate (Beaven Realty Ltd), (Licensed: Reaa 2008), and took 57 days to sell. On 1 August 2025, 11 Waimea Street, Westown, New Plymouth, 4310 had a Rating Valuation with a Capital Value of $690,000, Land Value of $305,000 and Improvement Value of $385,000.
| Date | Type | Price | Agent/Agency |
|---|---|---|---|
| 4 Nov 2025 | SOLD | $660,000 | |
| 9 Sep 2025 | ENQUIRIES OVER | $675,000 | Hayden Brooks of Professionals Real Estate (Beaven Realty Ltd), (Licensed: Reaa 2008) |
| 28 Aug 2024 | Rented | $620 | Stephanie Maxwell of Professionals Real Estate (Beaven Realty Ltd), (Licensed: Reaa 2008) |
| 15 Jul 2021 | Rented | $495 | Stephanie Maxwell of Professionals New Plymouth (Beaven Realty Ltd Mreinz), (Licensed: Reaa 2008) |
| 22 Oct 2020 | Rented | $470 | Stephanie Maxwell of Professionals New Plymouth (Beaven Realty Ltd Mreinz), (Licensed: Reaa 2008) |
| 12 Sep 2018 | SOLD | $470,000 | |
| 24 Feb 2017 | SOLD | $396,000 | |
| 1 Jul 2013 | SOLD | $270,000 | Marie Bishell of First National Western - Jdh Realty Mreinz Tradin |
| 5 Jun 2013 | ENQUIRIES OVER | $299,000 | Marie Bishell of First National Western - Jdh Realty Mreinz Tradin |
| 25 Jul 1997 | SOLD | $96,000 |
Lot 2 Deposited Plan 6970
There are no similar properties in the area that are listed for sale or recently sold.