
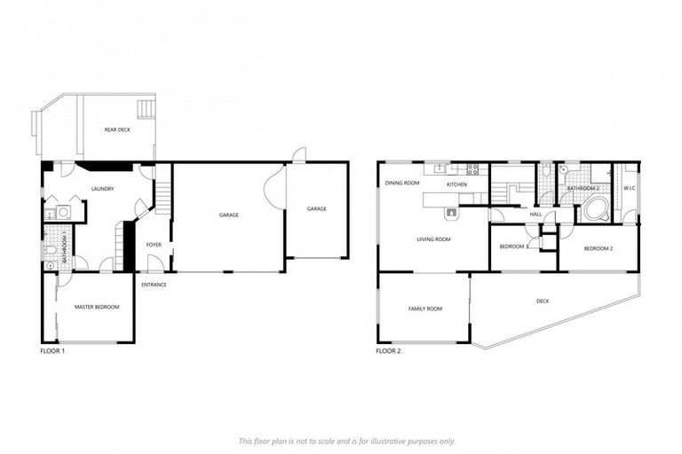
13 Winstone Place, Highlands Park, New Plymouth, 4312 is a Residential property built in 1984 with 3 bedrooms, 2 bathrooms and 3 parking spaces. The property is estimated to be valued in the range of $700,000 to $750,000.
The property last sold on 28 September 2021 for $725,150. It was sold by Tall Poppy New Plymouth, and took 14 days to sell. On 1 August 2025, 13 Winstone Place, Highlands Park, New Plymouth, 4312 had a Rating Valuation with a Capital Value of $720,000, Land Value of $385,000 and Improvement Value of $335,000.
| Date | Type | Price | Agent/Agency |
|---|---|---|---|
| 28 Sep 2021 | SOLD | $725,150 | Anna Straathof of Tall Poppy New Plymouth |
| 15 Sep 2021 | ENQUIRIES OVER | $675,000 | Anna Straathof of Tall Poppy New Plymouth |
| 10 Oct 2018 | SOLD | $481,000 | Anna Straathof of Beaven Realty Ltd Professionals, New Plymouth Licensed: Reaa 2008 |
| 10 Sep 2018 | ENQUIRIES OVER | $469,000 | Anna Straathof of Professionals New Plymouth (Beaven Realty Ltd Mreinz), Licensed Agent (Reaa 2008) |
| 21 Aug 2012 | SOLD | $380,000 | Jamie Gemmell of First National Western - Western First National R |
| 28 Apr 2012 | ENQUIRIES OVER | $390,000 | Jamie Gemmell of First National Western - Western First National R |
| 11 Oct 1996 | SOLD | $137,000 | |
| 15 Apr 1994 | SOLD | $118,000 | |
| 1 Jun 1983 | SOLD | $13,900 |
Lot 122 Deposited Plan 14060
There are no similar properties in the area that are listed for sale or recently sold.