
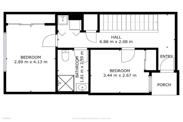
Marion Square Apartments, 23/26 Marion Street, Te Aro, Wellington, 6011 is a Residential property built in 1995 with 2 bedrooms, 1 bathroom and 1 parking space. The property is estimated to be valued in the range of $450,000 to $500,000.
The property last sold on 4 August 2020 for $530,000. It was sold by Ray White Wellington City, and took 79 days to sell. On 1 September 2024, Marion Square Apartments, 23/26 Marion Street, Te Aro, Wellington, 6011 had a Rating Valuation with a Capital Value of $430,000, Land Value of $280,000 and Improvement Value of $150,000.
| Date | Type | Price | Agent/Agency |
|---|---|---|---|
| 20 Apr 2026 | Rented | $680 | Laurie Attwood of Wolfbrook Property Management |
| 1 Nov 2025 | Rented | $680 | Laurie Attwood of Wolfbrook Property Management |
| 4 Aug 2020 | SOLD | $530,000 | |
| 18 May 2020 | ASKING PRICE | $545,000 | Katie Underwood of Ray White Wellington City |
| 21 Mar 2020 | Rented | $680 | |
| 13 Oct 2018 | Rented | $650 | |
| 22 Aug 2018 | ENQUIRIES OVER | $545,000 | John Kettle of Tommy's Real Estate Wellington City, Licensed Agent (Reaa 2008) |
| 26 Jul 2010 | SOLD | $500,000 | |
| 26 Jul 2010 | SOLD | $500,000 | |
| 19 Jun 2001 | SOLD | $265,000 | |
| 21 Jun 1999 | SOLD | $260,000 | |
| 16 Mar 1998 | SOLD | $245,500 | |
| 30 Nov 1996 | SOLD | $230,000 |
Accessory Unit AUL2 Deposited Plan 81381
There are no similar properties in the area that are listed for sale or recently sold.