1 of 23Jul 25
Loading...

161a Happy Valley Road Owhiro Bay, 6023


161a Happy Valley Road , Owhiro Bay, 6023
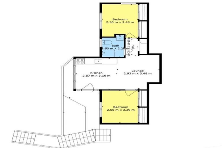
bed2
bathroom1
car-
land177 m2
floor-
Property Type
Residential
Year Built
-
Last Sold on 9 Jan 2026
Settlement Date
-
Sold By
Lowe & Co, (Licensed: Reaa 2008)
Settlement Date
-
Sold By
Lowe & Co, (Licensed: Reaa 2008)

Estimated Value Range  


An estimate of value is not currently available for this property. There could be insufficient property information or recent sales data. The property could be out of scope (e.g. non-residential, highly unique, rural) or the estimate cannot be determined with high enough confidence.

About 161a Happy Valley Road, Owhiro Bay, Wellington, 6023

161a Happy Valley Road, Owhiro Bay, Wellington, 6023 is a Residential property with 2 bedrooms, 1 bathroom and 0 parking spaces. Due to insufficient data, the value of the property cannot be estimated.

The property last sold on 9 January 2026 for an unknown price. It was sold by Lowe & Co, (Licensed: Reaa 2008). On 1 September 2024, 161a Happy Valley Road, Owhiro Bay, Wellington, 6023 had a Rating Valuation with a Capital Value of $340,000, Land Value of $260,000 and Improvement Value of $80,000.

Property History

DateTypePriceAgent/Agency
9 Jan 2026SOLD$0
13 Jul 2025Rented$470
17 Jun 2025ENQUIRIES OVER$425,000Chris Yiavasis of Lowe & Co, (Licensed: Reaa 2008)
Present Day
9 Jan
2026
Sold for $0
3 months 15 days
13 Jul
2025
Listed for Rent - Last price at $470 per week
17 Jun
2025
Enquiries Over — $425,000
Listed by Chris Yiavasis of Lowe & Co, (Licensed: Reaa 2008)
Unknown
Property Built

Commute Calculator

-
-
-
-

Rating Valuation

Capital Value
$340,000
Land Value
$260,000
Improvement Value
$80,000
Legal Description(s)

Lot 2 Deposited Plan 604680 and Section 1 Survey Office Plan 597095

Valuation Date
01-09-2024
Valuation Reference
17010/20401

Additional Information

Roof Construction
-
Zone
Residential Zone A, 9A
Units of Use
1
Wall Construction
-
Maori Land
No
Territorial Authority
Wellington City
Land Use
Vacant Residential

Suburb Insights

Comparable Properties

There are no similar properties in the area that are listed for sale or recently sold.