
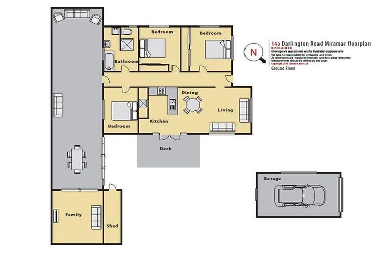
14a Darlington Road, Miramar, Wellington, 6022 is a Residential property built in 1900 with 2 bedrooms, 1 bathroom and 1 parking space. The property is estimated to be valued in the range of $1,000,000 to $1,100,000.
The property last sold on 6 December 2019 for $1,000,000. On 1 September 2024, 14a Darlington Road, Miramar, Wellington, 6022 had a Rating Valuation with a Capital Value of $980,000, Land Value of $580,000 and Improvement Value of $400,000.
| Date | Type | Price | Agent/Agency |
|---|---|---|---|
| 8 Jan 2021 | Rented | $950 | Mitchell Sedgwick of Trust Property Management Ltd |
| 6 Dec 2019 | SOLD | $1,000,000 | |
| 17 Nov 2016 | SOLD | $940,100 | |
| 15 Jul 2016 | SOLD | $677,000 | Robynne Cload of Team Group Realty Limited |
| 24 Jun 2016 | AUCTION | Price Not Disclosed | Robynne Cload of Team Group Realty Limited |
Lot 2 Deposited Plan 25280
There are no similar properties in the area that are listed for sale or recently sold.