
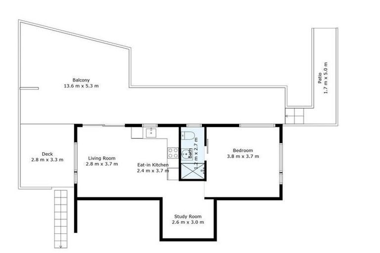
38 Buckingham Street, Melrose, Wellington, 6023 is a Residential property built in 1926 with 3 bedrooms, 2 bathrooms and 1 parking space. The property is estimated to be valued in the range of $1,000,000 to $1,100,000.
The property last sold on 17 June 2025 for $981,000. It was sold by Harcourts Wellington City. On 1 September 2024, 38 Buckingham Street, Melrose, Wellington, 6023 had a Rating Valuation with a Capital Value of $1,020,000, Land Value of $640,000 and Improvement Value of $380,000.
| Date | Type | Price | Agent/Agency |
|---|---|---|---|
| 16 Mar 2026 | Rented | $475 | |
| 17 Jun 2025 | SOLD | $981,000 | |
| 5 Mar 2025 | ENQUIRIES OVER | $949,000 | Nigel Solomon of Team Group Realty Limited, Harcourts Wellington City, (Licensed: Reaa 2008) |
| 15 Jun 2006 | SOLD | $525,000 | Mark Hamilton of Tommys |
| 24 May 2006 | TENDER | Price Not Disclosed | Mark Hamilton of Tommys |
| 17 Feb 2001 | SOLD | $250,000 | |
| 9 Jun 1995 | SOLD | $158,000 | |
| 3 Sep 1991 | SOLD | $145,000 | |
| 31 Mar 1989 | SOLD | $164,000 | |
| 1 Jan 1930 | SOLD | $0 |
Lot 6 Deposited Plan 7361
There are no similar properties in the area that are listed for sale or recently sold.