
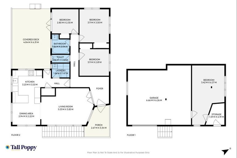
9 Dawn Grove, Brown Owl, Upper Hutt, 5018 is a Residential property built in 1966 with 4 bedrooms, 1 bathroom and 1 parking space. The property is estimated to be valued in the range of $650,000 to $700,000.
The property last sold on 22 April 2025 for $645,000. It was sold by Tall Poppy. On 1 June 2025, 9 Dawn Grove, Brown Owl, Upper Hutt, 5018 had a Rating Valuation with a Capital Value of $630,000, Land Value of $365,000 and Improvement Value of $265,000.
| Date | Type | Price | Agent/Agency |
|---|---|---|---|
| 22 Apr 2025 | SOLD | $645,000 | |
| 4 Mar 2025 | ENQUIRIES OVER | $655,000 | Russell Oliver of Tall Poppy Upper Hutt, (Licensed: Reaa 2008) |
| 25 Aug 2006 | SOLD | $270,000 | Robin Simpson of Tommys |
| 14 Jun 2006 | DEADLINE PRIVATE TREATY | Price Not Disclosed | Robin Simpson of Tommys |
Lot 14 Deposited Plan 25839
There are no similar properties in the area that are listed for sale or recently sold.