
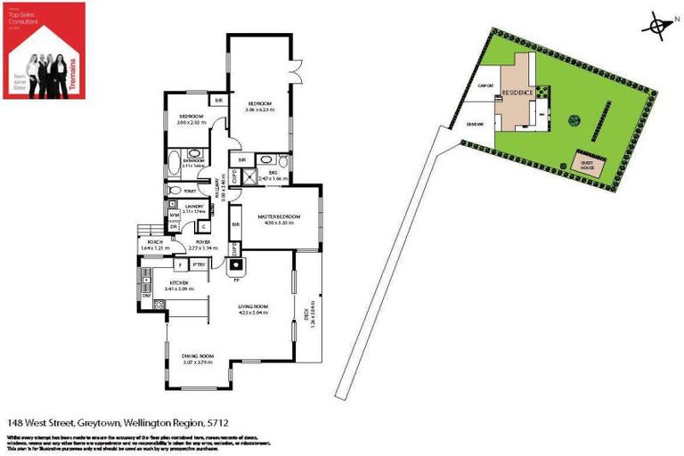
148 West Street, Greytown, 5712 is a Residential property built in 1988 with 3 bedrooms, 2 bathrooms and 1 parking space. The property is estimated to be valued in the range of $700,000 to $750,000.
The property last sold on 12 March 2026 for an unknown price. It was sold by Tremain Real Estate Wairarapa, (Licensed: Reaa 2008), and took 29 days to sell. On 1 September 2023, 148 West Street, Greytown, 5712 had a Rating Valuation with a Capital Value of $720,000, Land Value of $400,000 and Improvement Value of $320,000.
| Date | Type | Price | Agent/Agency |
|---|---|---|---|
| 12 Mar 2026 | $0 | Pending Settlement Advice | |
| 12 Feb 2026 | ASKING PRICE | Price Not Disclosed | Eva Wintle of Tremain Real Estate Wairarapa, (Licensed: Reaa 2008) |
| 31 Jan 2007 | SOLD | $345,000 | |
| 19 May 1999 | SOLD | $165,000 | |
| 6 May 1996 | SOLD | $137,000 | |
| 24 Aug 1993 | SOLD | $132,000 | |
| 8 May 1986 | SOLD | $9,000 |
Lot 9 Deposited Plan 45109
There are no similar properties in the area that are listed for sale or recently sold.