
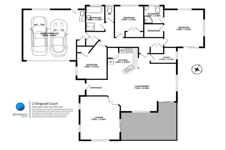
2 Dingwall Court, Rototuna, Hamilton, 3210 is a Residential property built in 1998 with 3 bedrooms, 2 bathrooms and 2 parking spaces. The property is estimated to be valued in the range of $900,000 to $1,000,000.
The property last sold on 24 August 1999 for $252,000. On 1 September 2024, 2 Dingwall Court, Rototuna, Hamilton, 3210 had a Rating Valuation with a Capital Value of $900,000, Land Value of $520,000 and Improvement Value of $380,000.
| Date | Type | Price | Agent/Agency |
|---|---|---|---|
| 6 Mar 2025 | ASKING PRICE | $895,000 | Heather Whyte of Lugtons Limited, (Licensed: Reaa 2008) |
| 24 Aug 1999 | SOLD | $252,000 | |
| 28 Oct 1997 | SOLD | $70,000 |
Lot 169 Deposited Plan South Auckland 81457
There are no similar properties in the area that are listed for sale or recently sold.