
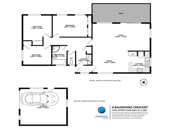
6 Balmerino Crescent, Pukete, Hamilton, 3200 is a Residential property built in 1991 with 3 bedrooms, 1 bathroom and 1 parking space. The property is estimated to be valued in the range of $700,000 to $750,000.
The property last sold on 27 August 2025 for $690,000. It was sold by Lugtons Real Estate, and took 8 days to sell. On 1 September 2024, 6 Balmerino Crescent, Pukete, Hamilton, 3200 had a Rating Valuation with a Capital Value of $700,000, Land Value of $445,000 and Improvement Value of $255,000.
| Date | Type | Price | Agent/Agency |
|---|---|---|---|
| 27 Aug 2025 | SOLD | $690,000 | |
| 20 Aug 2025 | ASKING PRICE | $699,000 | Heather Whyte of Lugtons Real Estate |
| 5 Jul 2024 | Rented | $600 | Jordan Ridgway of Lugtons Real Estate Rentals, (Licensed: Reaa 2008) |
| 18 Apr 2024 | ASKING PRICE | $699,000 | Heather Whyte of Lugtons Limited, (Licensed: Reaa 2008) |
| 29 Apr 2023 | Rented | $580 | Naomi Brown of Lugtons Real Estate Rentals, (Licensed: Reaa 2008) |
| 7 Apr 2022 | Rented | $580 | Chloe Vedder of Lugtons Real Estate Rentals |
| 1 Feb 2022 | ASKING PRICE | $770,000 | Heather Whyte of Lugtons Limited, (Licensed: Reaa 2008) |
| 17 Feb 2021 | SOLD | $740,000 | Michelle Pickering of Lodge Real Estate |
| 28 Jan 2021 | AUCTION | Price Not Disclosed | Michelle Pickering of Lodge Real Estate, (Licensed: Reaa 2008) |
| 22 Nov 2005 | SOLD | $202,500 | |
| 9 Nov 1990 | SOLD | $32,068 | |
| 26 Oct 1990 | SOLD | $98,000 |
Lot 93 Deposited Plan South Auckland 54572
There are no similar properties in the area that are listed for sale or recently sold.