
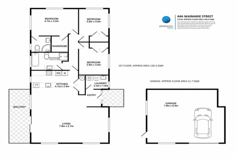
44a Waimarie Street, Nawton, Hamilton, 3200 is a Residential property built in 2017 with 3 bedrooms, 2 bathrooms and 2 parking spaces. The property is estimated to be valued in the range of $750,000 to $800,000.
The property last sold on 16 January 2020 for $655,000. It took 8 days to sell. On 1 September 2024, 44a Waimarie Street, Nawton, Hamilton, 3200 had a Rating Valuation with a Capital Value of $750,000, Land Value of $305,000 and Improvement Value of $445,000.
| Date | Type | Price | Agent/Agency |
|---|---|---|---|
| 27 Jan 2021 | Rented | $540 | Brenda Abercrombie of Ray White Hamilton (Online Realty Ltd) |
| 16 Jan 2020 | SOLD | $655,000 | |
| 9 Jan 2020 | ASKING PRICE | $679,000 | |
| 21 May 2018 | SOLD | $595,000 | James Walsh of Lodge Real Estate Ltd, Licensed Agent (Reaa 2008) |
| 21 May 2018 | SOLD | $595,000 | James Walsh of Lodge Real Estate Ltd, Licensed Agent (Reaa 2008) |
| 8 Feb 2018 | ASKING PRICE | $619,000 | James Walsh of Lodge Real Estate Ltd, Licensed Agent (Reaa 2008) |
| 8 Feb 2018 | ASKING PRICE | $619,000 | James Walsh of Lodge Real Estate Ltd, Licensed Agent (Reaa 2008) |
Lot 2 Deposited Plan 504449
There are no similar properties in the area that are listed for sale or recently sold.