
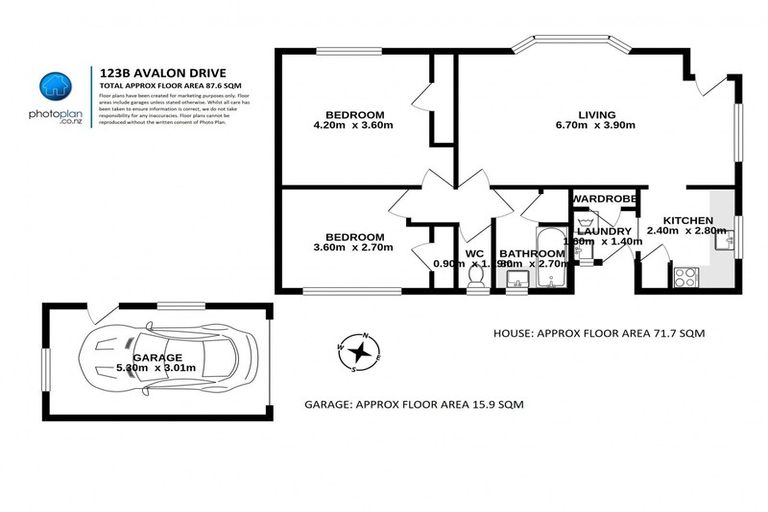
123b Avalon Drive, Nawton, Hamilton, 3200 is a Residential property built in 1987 with 2 bedrooms, 1 bathroom and 1 parking space. The property is estimated to be valued in the range of $450,000 to $500,000.
The property last sold on 22 June 2020 for $385,000. It was sold by Lugtons Ltd, (Licensed: Reaa 2008), and took 5 days to sell. On 1 September 2024, 123b Avalon Drive, Nawton, Hamilton, 3200 had a Rating Valuation with a Capital Value of $475,000, Land Value of $225,000 and Improvement Value of $250,000.
| Date | Type | Price | Agent/Agency |
|---|---|---|---|
| 22 Jun 2020 | SOLD | $385,000 | Lisa Sigley of Lugtons Ltd, (Licensed: Reaa 2008) |
| 18 Jun 2020 | ASKING PRICE | $369,000 | Lisa Sigley of Lugtons Ltd, (Licensed: Reaa 2008) |
| 2 Oct 2019 | SOLD | $349,000 | John Gavin of Lodge Real Estate Ltd, (Licensed: Reaa 2008) |
| 9 Sep 2019 | AUCTION | Price Not Disclosed | John Gavin of Lodge Real Estate Ltd, (Licensed: Reaa 2008) |
| 22 Sep 2010 | SOLD | $165,000 | John Gavin of Lodge Real Estate |
| 30 Jan 2010 | DEADLINE PRIVATE TREATY | $175,000 | John Gavin of Lodge Real Estate |
| 15 Dec 2007 | DEADLINE PRIVATE TREATY | $239,000 | Feroz Buksh of Century 21 George Boyes & Co |
| 7 Jan 2006 | DEADLINE PRIVATE TREATY | $215,000 | Feroz Buksh of Century 21 Geo Boyes |
| 6 Nov 1985 | SOLD | $48,500 |
Flat B Deposited Plan South Auckland 40223
There are no similar properties in the area that are listed for sale or recently sold.