
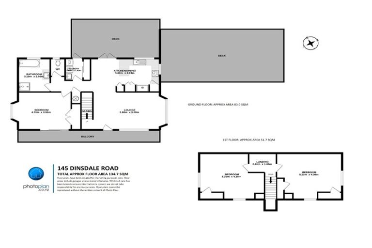
145 Dinsdale Road, Dinsdale, Hamilton, 3204 is a Residential property built in 1985 with 3 bedrooms, 1 bathroom and 2 parking spaces. The property is estimated to be valued in the range of $700,000 to $750,000.
The property last sold on 23 March 2022 for $878,500. It was sold by Lugtons Ltd, and took 7 days to sell. On 1 September 2024, 145 Dinsdale Road, Dinsdale, Hamilton, 3204 had a Rating Valuation with a Capital Value of $710,000, Land Value of $480,000 and Improvement Value of $230,000.
| Date | Type | Price | Agent/Agency |
|---|---|---|---|
| 25 Jun 2024 | BY NEGOTIATION | Price Not Disclosed | Sol Taplin of Monarch Real Estate Ltd Hamilton, (Licensed: Reaa 2008) |
| 23 Mar 2022 | SOLD | $878,500 | Jamie Barakat of Lugtons Ltd |
| 17 Mar 2022 | BY NEGOTIATION | Price Not Disclosed | Jamie Barakat of Lugtons Ltd |
| 29 Nov 2010 | SOLD | $320,000 | |
| 26 Jun 2007 | SOLD | $275,000 | Jenny Larsen of Lodge Real Estate |
| 16 Jun 2007 | DEADLINE PRIVATE TREATY | $295,000 | Jenny Larsen of Lodge Real Estate |
| 28 Feb 1984 | SOLD | $15,000 | |
| 1 Jul 1982 | SOLD | $9,000 |
Lot 8 Deposited Plan South Auckland 23736
There are no similar properties in the area that are listed for sale or recently sold.