
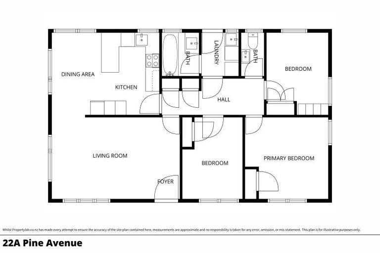
22a Pine Avenue, Bader, Hamilton, 3206 is a Residential property built in 1950 with 3 bedrooms, 1 bathroom and 0 parking spaces. The property is estimated to be valued in the range of $550,000 to $600,000.
It is unknown when the property was last sold or how much it was sold for. On 1 September 2024, 22a Pine Avenue, Bader, Hamilton, 3206 had a Rating Valuation with a Capital Value of $560,000, Land Value of $310,000 and Improvement Value of $250,000.
| Date | Type | Price | Agent/Agency |
|---|---|---|---|
| 12 Feb 2026 | BY NEGOTIATION | Price Not Disclosed | Aman Bali of Bayleys Rototuna, (Licensed: Reaa 2008) |
Lot 1 Deposited Plan 579346
There are no similar properties in the area that are listed for sale or recently sold.