
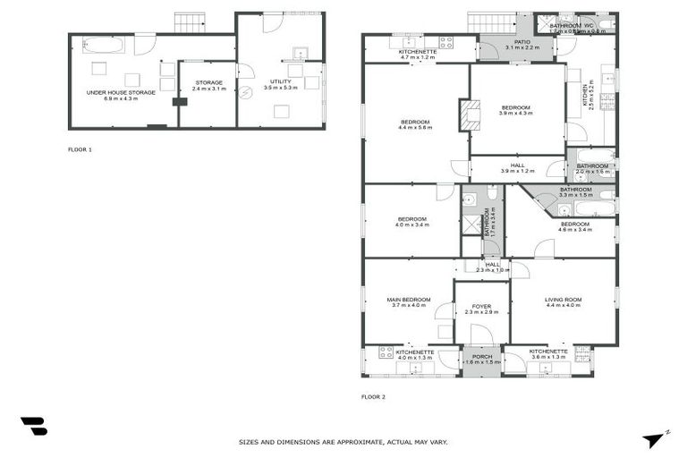
31 Castle Street, Eltham, 4322 is a Lifestyle property built in 1910 with 4 bedrooms, 4 bathrooms and 3 parking spaces. The property is estimated to be valued in the range of $450,000 to $500,000.
It is unknown when the property was last sold or how much it was sold for. On 1 September 2024, 31 Castle Street, Eltham, 4322 had a Rating Valuation with a Capital Value of $425,000, Land Value of $200,000 and Improvement Value of $225,000.
| Date | Type | Price | Agent/Agency |
|---|---|---|---|
| 9 Nov 2023 | BY NEGOTIATION | Price Not Disclosed | Michael McGregor of Bayleys Remuera, (Licensed: Reaa 2008) |
Lot 15 and Part Lot 16 Deposited Plan 1394
There are no similar properties in the area that are listed for sale or recently sold.