
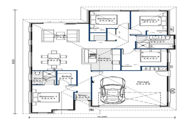
66 Arundel Crescent, Strathern, Invercargill, 9812 is a Residential property built in 2024 with 4 bedrooms, 2 bathrooms and 2 parking spaces. The property is estimated to be valued in the range of $700,000 to $750,000.
The property last sold on 21 September 2024 for $721,000. It was sold by Professionals Invercargill (Redcoats Ltd), (Licensed: Reaa 2008). On 1 July 2023, 66 Arundel Crescent, Strathern, Invercargill, 9812 had a Rating Valuation with a Capital Value of $600,000, Land Value of $105,000 and Improvement Value of $495,000.
| Date | Type | Price | Agent/Agency |
|---|---|---|---|
| 21 Sep 2024 | SOLD | $721,000 | |
| 5 Aug 2024 | ASKING PRICE | $725,000 | Rhys White of Professionals Redcoats |
| 22 Jan 2024 | SOLD | $120,000 | |
| 25 May 2023 | ASKING PRICE | $613,000 | Matt Randall of Bennett Homes Limited |
| 16 Aug 2022 | ASKING PRICE | $687,000 | Holly Taucher of Bennett Homes Limited |
Lot 2 Deposited Plan 13091
There are no similar properties in the area that are listed for sale or recently sold.