
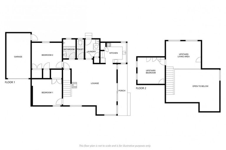
25c Williams Street, Sunshine Bay, Queenstown, 9300 is a Residential property built in 1985 with 3 bedrooms, 1 bathroom and 1 parking space. The property is estimated to be valued in the range of $900,000 to $1,000,000.
The property last sold on 5 December 2022 for $780,000. It was sold by Bayleys Queenstown - Queenstown And Southern NZ Realty Limited, (Licensed: Reaa 2008), and took 29 days to sell. On 1 September 2024, 25c Williams Street, Sunshine Bay, Queenstown, 9300 had a Rating Valuation with a Capital Value of $860,000, Land Value of $370,000 and Improvement Value of $490,000.
| Date | Type | Price | Agent/Agency |
|---|---|---|---|
| 5 Dec 2022 | SOLD | $780,000 | Donna Harris of Bayleys Queenstown - Queenstown And Southern NZ Realty Limited, (Licensed: Reaa 2008) |
| 7 Nov 2022 | ASKING PRICE | $810,000 | Donna Harris of Bayleys Queenstown - Queenstown And Southern NZ Realty Limited, (Licensed: Reaa 2008) |
| 5 May 2022 | ASKING PRICE | $819,000 | Ron Blunden of Tall Poppy Queenstown |
| 18 Nov 2021 | PRICE ON APPLICATION | Price Not Disclosed | Ron Blunden of Tall Poppy Queenstown |
| 6 Dec 2012 | SOLD | $395,000 | Graeme Jackson of Hoamz Limited Mreinz |
| 20 Oct 2012 | ASKING PRICE | $409,000 | Graeme Jackson of Hoamz Limited Mreinz |
| 9 May 1996 | SOLD | $150,000 | |
| 21 Jan 1994 | SOLD | $167,000 | |
| 5 Jul 1991 | SOLD | $113,000 |
Lot 1 Deposited Plan 20289
There are no similar properties in the area that are listed for sale or recently sold.