
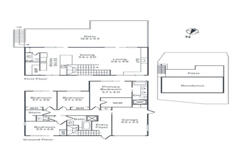
15 Lorne Street, Lake Hayes, Queenstown, 9304 is a Residential property built in 2020 with 4 bedrooms, 2 bathrooms and 1 parking space. The property is estimated to be valued in the range of $1,500,000 to $1,600,000.
The property last sold on 9 November 2023 for $1,325,000. It was sold by Whitefox Real Estate - Queenstown, (Licensed: Reaa 2008), and took 29 days to sell. On 1 September 2024, 15 Lorne Street, Lake Hayes, Queenstown, 9304 had a Rating Valuation with a Capital Value of $1,375,000, Land Value of $520,000 and Improvement Value of $855,000.
| Date | Type | Price | Agent/Agency |
|---|---|---|---|
| 9 Nov 2023 | SOLD | $1,325,000 | |
| 12 Oct 2023 | ASKING PRICE | $1,375,000 | Julie White of Whitefox Real Estate - Queenstown, (Licensed: Reaa 2008) |
| 15 Mar 2016 | SOLD | $320,000 |
Lot 37, 641 Deposited Plan 505513
There are no similar properties in the area that are listed for sale or recently sold.