
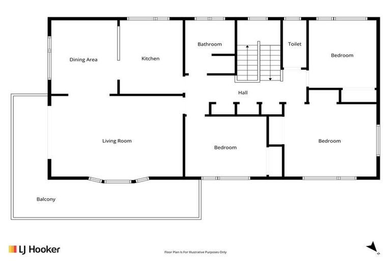
5a Fifield Street, Roslyn, Dunedin, 9010 is a Residential property built in 1975 with 4 bedrooms, 2 bathrooms and 2 parking spaces. The property is estimated to be valued in the range of $800,000 to $900,000.
The property last sold on 6 March 2026 for $865,000. It was sold by LJ Hooker Dunedin, (Licensed: Reaa 2008). On 1 June 2025, 5a Fifield Street, Roslyn, Dunedin, 9010 had a Rating Valuation with a Capital Value of $800,000, Land Value of $435,000 and Improvement Value of $365,000.
| Date | Type | Price | Agent/Agency |
|---|---|---|---|
| 6 Mar 2026 | SOLD | $865,000 | |
| 12 Feb 2026 | ASKING PRICE | Price Not Disclosed | Tania McInally of LJ Hooker Dunedin |
| 5 Jun 2024 | Rented | $760 | |
| 5 Mar 2012 | SOLD | $405,000 | Madelon White of Ray White Dunedin |
| 15 Feb 2012 | AUCTION | Price Not Disclosed | |
| 15 Feb 2012 | AUCTION | Price Not Disclosed | |
| 10 Jan 2012 | SOLD | $445,000 | |
| 19 Dec 2009 | DEADLINE PRIVATE TREATY | $460,000 | Lynn Rodeka of L J Hooker Dunedin |
| 7 Mar 2007 | SOLD | $450,000 | Christine O'Connor of Harcourts Epic Realty Ltd |
| 24 Feb 2007 | AUCTION | Price Not Disclosed | Christine O'Connor of Harcourts Epic Realty Ltd |
Lot 3 Deposited Plan 2848
There are no similar properties in the area that are listed for sale or recently sold.