
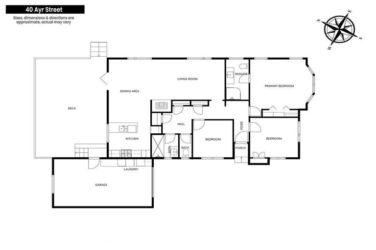
40 Ayr Street, Mosgiel, 9024 is a Residential property built in 1939 with 3 bedrooms, 2 bathrooms and 1 parking space. The property is estimated to be valued in the range of $750,000 to $800,000.
The property last sold on 4 February 2026 for $650,000. It was sold by Edinburgh Realty Mosgiel, (Licensed: Reaa 2008), and took 8 days to sell. On 1 June 2025, 40 Ayr Street, Mosgiel, 9024 had a Rating Valuation with a Capital Value of $720,000, Land Value of $350,000 and Improvement Value of $370,000.
| Date | Type | Price | Agent/Agency |
|---|---|---|---|
| 4 Feb 2026 | SOLD | $650,000 | |
| 28 Jan 2026 | BY NEGOTIATION | Price Not Disclosed | Jenny Lambert of Edinburgh Realty Mosgiel, (Licensed: Reaa 2008) |
| 8 Dec 2020 | SOLD | $665,000 | |
| 3 Nov 2020 | ASKING PRICE | Price Not Disclosed | Jason Hynes of LJ Hooker Dunedin |
| 27 Jan 2009 | SOLD | $169,000 | |
| 4 Mar 1986 | SOLD | $56,000 | |
| 27 Sep 1983 | SOLD | $48,000 |
Lot 1 Deposited Plan 15099
There are no similar properties in the area that are listed for sale or recently sold.