
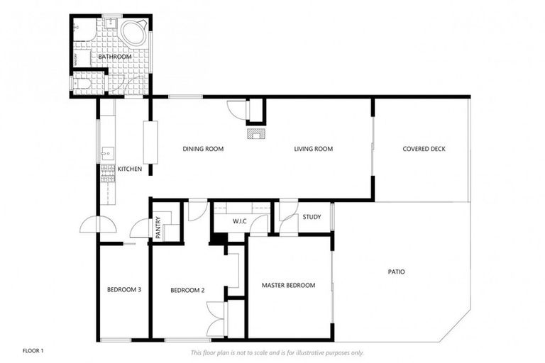
106 District Road, Green Island, Dunedin, 9018 is a Residential property built in 1882 with 3 bedrooms, 1 bathroom and 1 parking space. The property is estimated to be valued in the range of $550,000 to $600,000.
The property last sold on 29 July 2021 for $580,000. It was sold by Tall Poppy Dunedin. On 1 June 2025, 106 District Road, Green Island, Dunedin, 9018 had a Rating Valuation with a Capital Value of $530,000, Land Value of $240,000 and Improvement Value of $290,000.
| Date | Type | Price | Agent/Agency |
|---|---|---|---|
| 29 Jul 2021 | SOLD | $580,000 | Leona Munro of Tall Poppy Dunedin |
| 21 Jul 2021 | BY NEGOTIATION | Price Not Disclosed | Leona Munro of Tall Poppy Dunedin, (Licensed: Reaa 2008) |
| 23 Jan 2020 | SOLD | $440,020 | Alice Munro of Bayleys Metro, (Licensed: Reaa 2008) |
| 15 Jan 2020 | DEADLINE PRIVATE TREATY | Price Not Disclosed | Alice Munro of Bayleys Metro, (Licensed: Reaa 2008) |
| 17 Nov 2015 | SOLD | $170,000 | |
| 17 May 2012 | ASKING PRICE | $165,000 | Viv Patrick of Nidd Realty Ltd Mreinz |
| 15 May 2012 | SOLD | $165,000 | Viv Patrick of Nidd Realty Limited |
| 27 Nov 2010 | DEADLINE PRIVATE TREATY | $162,500 | Viv Patrick of Edinburgh Realty Ltd |
| 5 Apr 2008 | DEADLINE PRIVATE TREATY | $169,000 | Johnny Thurlow of L J Hooker |
| 6 Nov 2005 | SOLD | $160,000 | |
| 2 Feb 1995 | SOLD | $70,000 | |
| 11 Jan 1994 | SOLD | $69,000 | |
| 3 Aug 1993 | SOLD | $37,500 | |
| 22 Jun 1984 | SOLD | $16,500 |
Lot 1 Deposited Plan 5270
There are no similar properties in the area that are listed for sale or recently sold.