
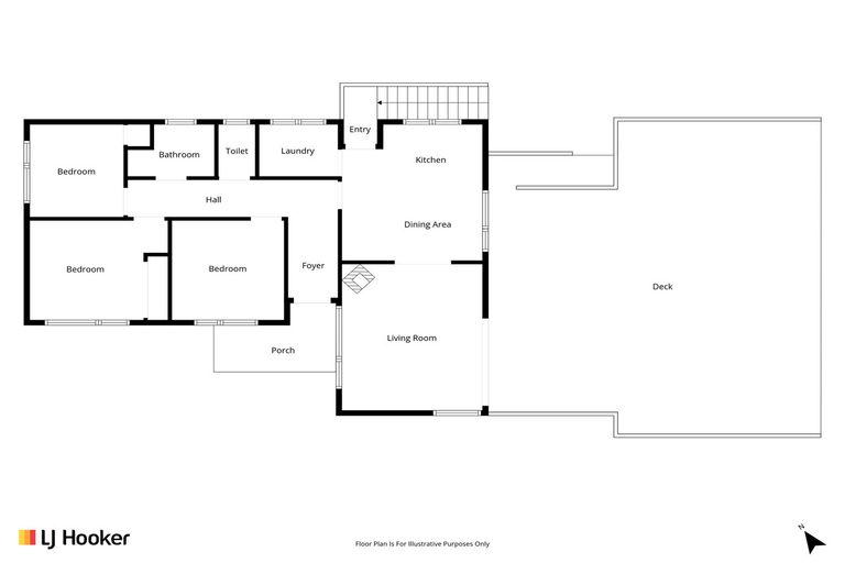
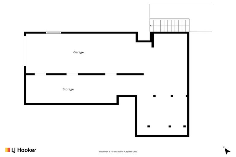
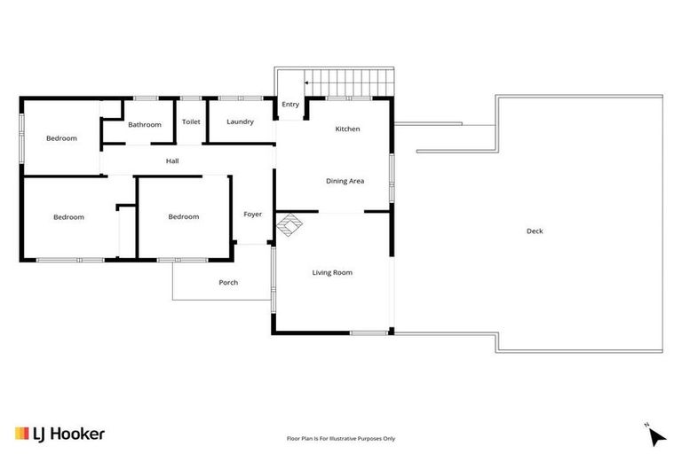
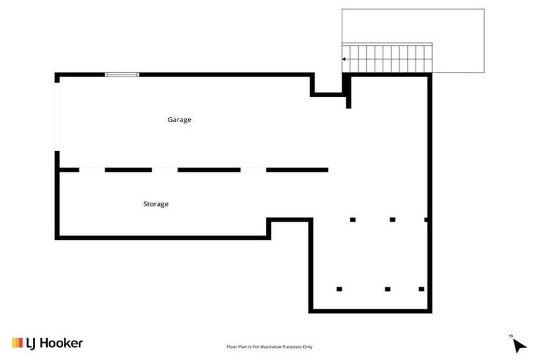
126 Martin Road, Fairfield, Dunedin, 9018 is a Residential property built in 1968 with 3 bedrooms, 1 bathroom and 1 parking space. The property is estimated to be valued in the range of $550,000 to $600,000.
The property last sold on 18 February 2026 for an unknown price. It was sold by LJ Hooker Dunedin, and took 21 days to sell. On 1 June 2025, 126 Martin Road, Fairfield, Dunedin, 9018 had a Rating Valuation with a Capital Value of $560,000, Land Value of $330,000 and Improvement Value of $230,000.
| Date | Type | Price | Agent/Agency |
|---|---|---|---|
| 18 Feb 2026 | $685,000 | Pending Settlement Advice | |
| 29 Jan 2026 | ASKING PRICE | Price Not Disclosed | Lawrence Schaumann of LJ Hooker Dunedin |
| 27 Oct 2016 | SOLD | $336,000 | |
| 27 Oct 2016 | ASKING PRICE | Price Not Disclosed | |
| 14 Dec 2015 | SOLD | $292,000 | |
| 13 Dec 2005 | SOLD | $217,000 | |
| 28 Oct 2002 | SOLD | $123,000 | |
| 4 Nov 2001 | SOLD | $95,000 | |
| 20 May 1999 | SOLD | $105,000 | |
| 15 Dec 1996 | SOLD | $96,000 |
Lot 1 Deposited Plan 11475
There are no similar properties in the area that are listed for sale or recently sold.