
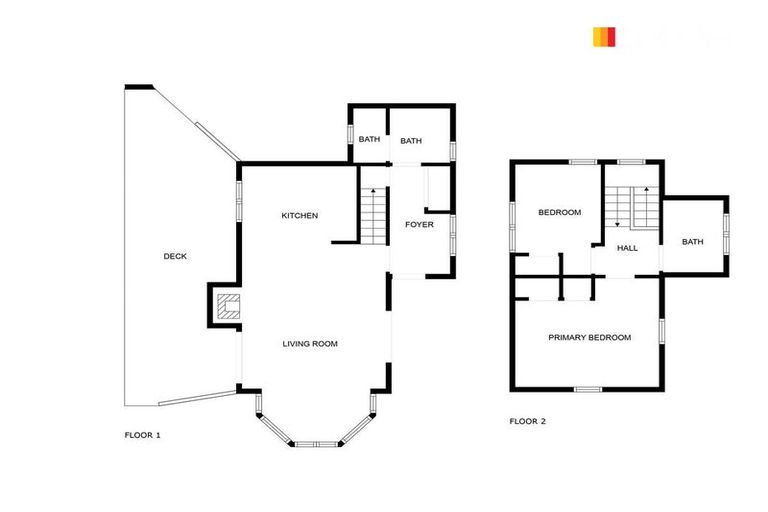
86 Gladstone Road, Dalmore, Dunedin, 9010 is a Residential property built in 1992 with 2 bedrooms, 2 bathrooms and 1 parking space. The property is estimated to be valued in the range of $550,000 to $600,000.
The property last sold on 31 October 2024 for $550,000. It was sold by LJ Hooker Dunedin, and took 14 days to sell. On 1 June 2025, 86 Gladstone Road, Dalmore, Dunedin, 9010 had a Rating Valuation with a Capital Value of $560,000, Land Value of $360,000 and Improvement Value of $200,000.
| Date | Type | Price | Agent/Agency |
|---|---|---|---|
| 31 Oct 2024 | SOLD | $550,000 | |
| 18 Oct 2024 | ASKING PRICE | Price Not Disclosed | Trista Townsend of LJ Hooker Dunedin |
| 10 Nov 2023 | ENQUIRIES OVER | $519,000 | Trista Townsend of LJ Hooker Dunedin |
| 20 Apr 2012 | SOLD | $230,000 | Sharon Hyndman of Metro |
| 3 Mar 2012 | DEADLINE PRIVATE TREATY | $249,000 | Sharon Hyndman of Metro |
| 11 Nov 2001 | SOLD | $107,000 | |
| 7 Mar 1996 | SOLD | $115,000 | |
| 5 Dec 1995 | SOLD | $115,000 | |
| 11 Nov 1986 | SOLD | $8,000 |
Lot 1 and Lot 3 Deposited Plan 5733
There are no similar properties in the area that are listed for sale or recently sold.