
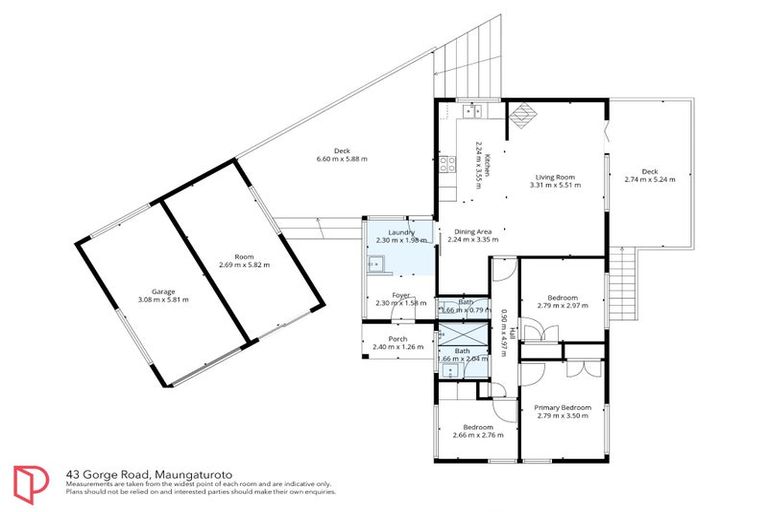
43 Gorge Road, Maungaturoto, 0520 is a Residential property built in 1960 with 3 bedrooms, 1 bathroom and 1 parking space. The property is estimated to be valued in the range of $550,000 to $600,000.
The property last sold on 2 April 2026 for an unknown price. It was sold by Schultz Realty Ltd, (Licensed: Reaa 2008), and took 42 days to sell. On 1 September 2023, 43 Gorge Road, Maungaturoto, 0520 had a Rating Valuation with a Capital Value of $530,000, Land Value of $285,000 and Improvement Value of $245,000.
| Date | Type | Price | Agent/Agency |
|---|---|---|---|
| 2 Apr 2026 | $0 | Pending Settlement Advice | |
| 9 Dec 2025 | ASKING PRICE | $599,000 | India Williamson of Schultz Realty Ltd, (Licensed: Reaa 2008) |
| 25 Mar 2019 | SOLD | $349,000 | |
| 18 Mar 2019 | ASKING PRICE | $349,000 | Jill Wilson of First National Roper & Jones - Dargaville Realty Ltd, (Licensed: Reaa 2008) |
| 18 Apr 2007 | SOLD | $210,000 |
Lot 2 Deposited Plan 43383
There are no similar properties in the area that are listed for sale or recently sold.