
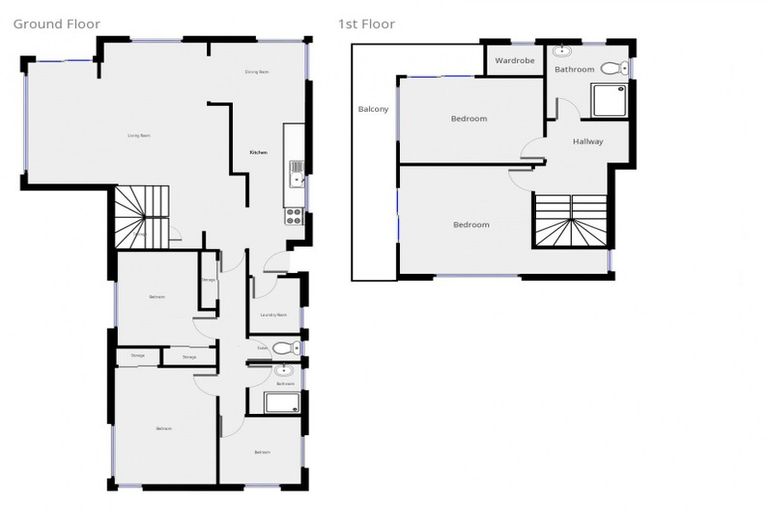
83a Scotia Street, Wakatu, Nelson, 7011 is a Residential property built in 1974 with 5 bedrooms, 2 bathrooms and 2 parking spaces. The property is estimated to be valued in the range of $700,000 to $750,000.
The property last sold on 9 October 2020 for $630,000. On 1 September 2024, 83a Scotia Street, Wakatu, Nelson, 7011 had a Rating Valuation with a Capital Value of $740,000, Land Value of $290,000 and Improvement Value of $450,000.
| Date | Type | Price | Agent/Agency |
|---|---|---|---|
| 9 Oct 2020 | SOLD | $630,000 | |
| 14 Oct 2013 | SOLD | $378,000 | Sandy Warren of Nelbay Land Ltd Mreinz (A Member OF The Haven Rea |
| 2 Oct 2013 | ASKING PRICE | Price Not Disclosed | Sandy Warren of Nelbay Land Ltd Mreinz (A Member OF The Haven Rea |
| 1 Oct 2012 | ASKING PRICE | $385,000 | |
| 25 Oct 2007 | SOLD | $325,000 | Christine Ashdown of Summit Real Estate Ltd |
| 5 Oct 2007 | DEADLINE PRIVATE TREATY | $340,000 | Christine Ashdown of Summit Real Estate Ltd |
| 24 Feb 2003 | SOLD | $235,000 |
Lot 2 Deposited Plan 8963
There are no similar properties in the area that are listed for sale or recently sold.