
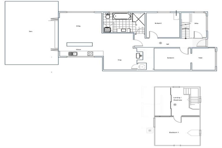
30 Grove Street, The Wood, Nelson, 7010 is a Residential property built in 1910 with 3 bedrooms, 1 bathroom and 1 parking space. The property is estimated to be valued in the range of $900,000 to $1,000,000.
The property last sold on 7 June 2004 for $320,000. On 1 September 2024, 30 Grove Street, The Wood, Nelson, 7010 had a Rating Valuation with a Capital Value of $960,000, Land Value of $540,000 and Improvement Value of $420,000.
| Date | Type | Price | Agent/Agency |
|---|---|---|---|
| 16 May 2025 | Rented | $760 | |
| 27 May 2024 | Rented | $690 | |
| 15 May 2024 | ENQUIRIES OVER | $1,100,000 | Belinda King of Summit Real Estate Ltd, Nelson, (Licensed: Reaa 2008) |
| 3 Dec 2020 | ENQUIRIES OVER | $895,000 | Jeremy Matthews of Bayleys Nelson (Vining Realty Group Ltd) Mreinz, (Licensed: Reaa 2008) |
| 7 Jun 2004 | SOLD | $320,000 | |
| 19 Jul 2000 | SOLD | $179,000 | |
| 22 Jan 1997 | SOLD | $166,000 | |
| 21 Oct 1987 | SOLD | $67,000 | |
| 12 Aug 1987 | SOLD | $53,000 |
Lot 1 and Lot 3 Deposited Plan 8006
There are no similar properties in the area that are listed for sale or recently sold.