
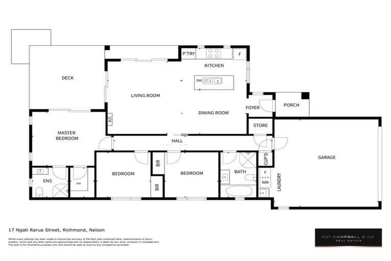
17 Ngati Rarua Street, Richmond, 7020 is a Residential property built in 2016 with 3 bedrooms, 2 bathrooms and 2 parking spaces. The property is estimated to be valued in the range of $900,000 to $1,000,000.
The property last sold on 1 March 2025 for $910,000. It was sold by Kat Campbell & Co. Real Estate, (Licensed: Reaa 2008), and took 38 days to sell. On 1 September 2024, 17 Ngati Rarua Street, Richmond, 7020 had a Rating Valuation with a Capital Value of $880,000, Land Value of $470,000 and Improvement Value of $410,000.
| Date | Type | Price | Agent/Agency |
|---|---|---|---|
| 1 Mar 2025 | SOLD | $910,000 | |
| 23 Jan 2025 | ENQUIRIES OVER | $899,000 | Helen Ruston of Kat Campbell & Co. Real Estate, (Licensed: Reaa 2008) |
| 7 Dec 2015 | SOLD | $250,000 |
Lot 17 Deposited Plan 487679
There are no similar properties in the area that are listed for sale or recently sold.