
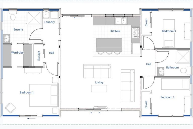
6 Dustin Street, Foxton Beach, Foxton, 4815 is a Residential property built in 2021 with 3 bedrooms, 2 bathrooms and 0 parking spaces. The property is estimated to be valued in the range of $650,000 to $700,000.
The property last sold on 14 April 2026 for an unknown price. It was sold by One Agency Horowhenua Realty, (Licensed: Reaa 2008), and took 56 days to sell. On 1 August 2025, 6 Dustin Street, Foxton Beach, Foxton, 4815 had a Rating Valuation with a Capital Value of $655,000, Land Value of $235,000 and Improvement Value of $420,000.
| Date | Type | Price | Agent/Agency |
|---|---|---|---|
| 14 Apr 2026 | $0 | Pending Settlement Advice | |
| 18 Feb 2026 | ASKING PRICE | $679,000 | Malcolm Cooper of One Agency Horowhenua Realty, (Licensed: Reaa 2008) |
| 29 Oct 2024 | SOLD | $670,000 | |
| 11 Jun 2024 | ASKING PRICE | $689,000 | Malcolm Cooper of One Agency Horowhenua Realty, (Licensed: Reaa 2008) |
| 6 Mar 2019 | SOLD | $294,000 | |
| 15 Feb 2019 | ENQUIRIES OVER | $289,000 | Malcolm Cooper of One Agency Wellington Realty (Licensed: Reaa 2008) |
| 18 Jun 2010 | SOLD | $115,000 | Sue Werner of Property Brokers Foxton |
| 3 Jun 2010 | DEADLINE PRIVATE TREATY | $135,000 | Sue Werner of Property Brokers Foxton |
| 14 Jan 2010 | DEADLINE PRIVATE TREATY | $165,000 | Sue Werner of Property Brokers Foxton |
| 24 Jan 2003 | SOLD | $95,500 | |
| 4 Sep 2000 | SOLD | $53,000 | |
| 25 Nov 1994 | SOLD | $48,000 |
Lot 682 Deposited Plan 18833
There are no similar properties in the area that are listed for sale or recently sold.