
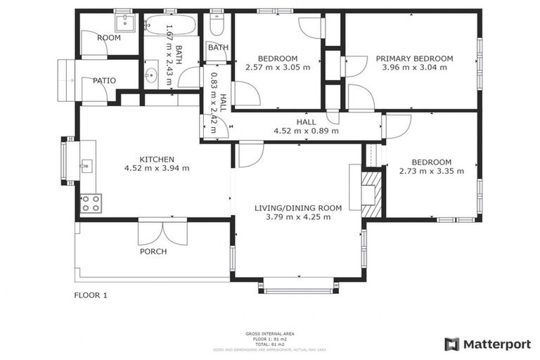
27 Ropata Street, Kaiti, Gisborne, 4010 is a Residential property built in 1965 with 3 bedrooms, 1 bathroom and 2 parking spaces. The property is estimated to be valued in the range of $500,000 to $550,000.
The property last sold on 10 February 2023 for $505,000. On 1 August 2023, 27 Ropata Street, Kaiti, Gisborne, 4010 had a Rating Valuation with a Capital Value of $475,000, Land Value of $196,000 and Improvement Value of $279,000.
| Date | Type | Price | Agent/Agency |
|---|---|---|---|
| 10 Feb 2023 | SOLD | $505,000 | |
| 10 Mar 2022 | SOLD | $490,000 | Jake Stevens of Bronwyn Kay Agency |
| 16 Feb 2022 | UNKNOWN | Price Not Disclosed | Jake Stevens of Bronwyn Kay Agency |
| 2 Feb 2015 | SOLD | $174,000 | |
| 10 Jul 2002 | SOLD | $100,000 |
Lot 13 Deposited Plan 5086
There are no similar properties in the area that are listed for sale or recently sold.