
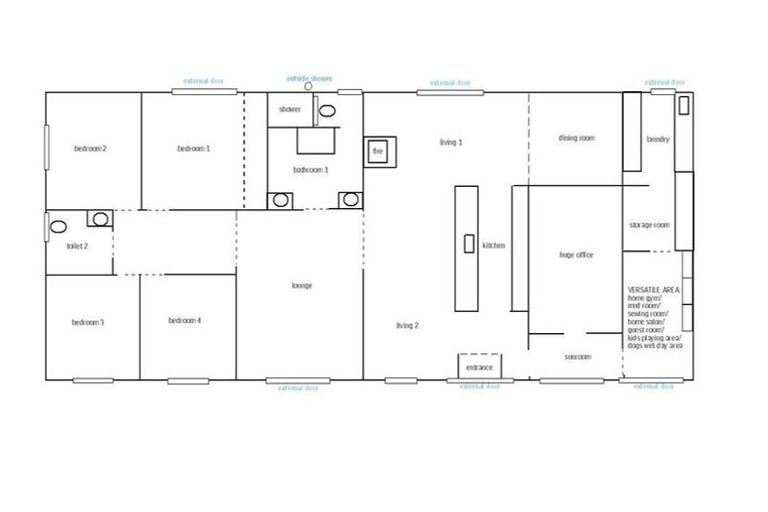
27 Loburn Whiterock Road, Loburn, Rangiora, 7472 is a Lifestyle property built in 2011 with 4 bedrooms, 1 bathroom and 4 parking spaces. The property is estimated to be valued in the range of $1,100,000 to $1,200,000.
The property last sold on 28 March 2024 for $1,130,000. It was sold by Harcourts Four Seasons Realty 2017 Ltd Rangiora, (Licensed: Reaa 2008), and took 10 days to sell. On 1 June 2025, 27 Loburn Whiterock Road, Loburn, Rangiora, 7472 had a Rating Valuation with a Capital Value of $1,130,000, Land Value of $540,000 and Improvement Value of $590,000.
| Date | Type | Price | Agent/Agency |
|---|---|---|---|
| 28 Mar 2024 | SOLD | $1,130,000 | |
| 19 Mar 2024 | BY NEGOTIATION | Price Not Disclosed | Div Harrison of Harcourts Four Seasons Realty 2017 Ltd Rangiora, (Licensed: Reaa 2008) |
| 29 Apr 2023 | ASKING PRICE | $1,150,000 | Leigh Miller of Harcourts Four Seasons Realty 2017 Ltd Rangiora, (Licensed: Reaa 2008) |
| 22 Jan 2019 | SOLD | $730,000 | |
| 9 Dec 2015 | SOLD | $670,000 | Marijke Sheppard of Ray White Full Circle (Full Circle Real Estate LT |
| 18 Nov 2015 | ASKING PRICE | Price Not Disclosed | Marijke Sheppard of Ray White Full Circle (Full Circle Real Estate LT |
| 12 Feb 2010 | SOLD | $220,500 | |
| 27 Oct 2006 | SOLD | $236,250 |
Lot 2 Deposited Plan 378903
There are no similar properties in the area that are listed for sale or recently sold.