
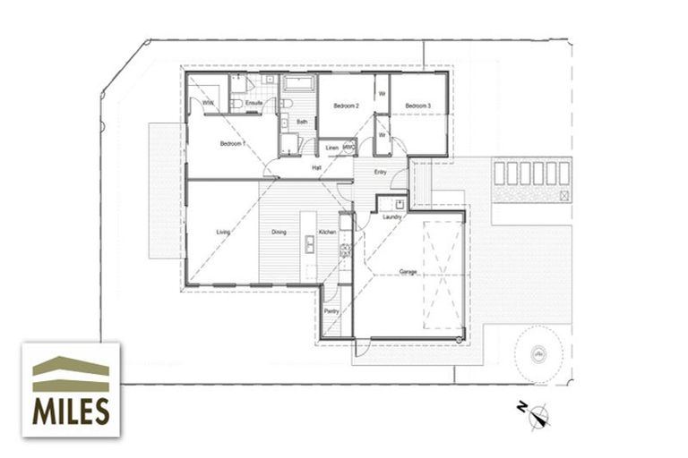
27 River Stone Drive, Halswell, Christchurch, 8025 is a Residential property built in 2025 with 3 bedrooms, 2 bathrooms and 2 parking spaces. The property is estimated to be valued in the range of $800,000 to $900,000.
It is unknown when the property was last sold or how much it was sold for. On 1 August 2022, 27 River Stone Drive, Halswell, Christchurch, 8025 had a Rating Valuation with a Capital Value of $830,000, Land Value of $390,000 and Improvement Value of $440,000.
| Date | Type | Price | Agent/Agency |
|---|---|---|---|
| 1 Nov 2025 | BY NEGOTIATION | Price Not Disclosed | Philip Wright of Miles |
| 14 Jul 2025 | ASKING PRICE | $889,000 | Bex Bryan of Miles |
| 19 Apr 2025 | ASKING PRICE | $889,000 | Bex Bryan of Miles |
| 1 Jan 1930 | SOLD | $0 |
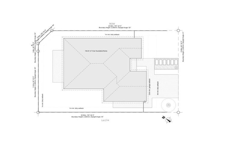
Lot 213 Deposited Plan 595844
There are no similar properties in the area that are listed for sale or recently sold.