
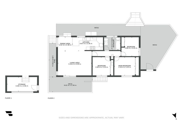
15 Arde Place, Massey, Auckland, 0614 is a Residential property built in 1981 with 3 bedrooms, 1 bathroom and 1 parking space. The property is estimated to be valued in the range of $800,000 to $900,000.
The property last sold on 29 March 2018 for $605,000. It was sold by Barfoot & Thompson. On 1 May 2024, 15 Arde Place, Massey, Auckland, 0614 had a Rating Valuation with a Capital Value of $840,000, Land Value of $680,000 and Improvement Value of $160,000.
| Date | Type | Price | Agent/Agency |
|---|---|---|---|
| 22 Feb 2024 | Rented | $680 | Marina George of Renthub Ltd |
| 19 Jan 2024 | ASKING PRICE | $849,000 | Teide Grice of Harcourts Northwest Realty Ltd, (Licensed: Reaa 2008) |
| 11 Feb 2022 | BY NEGOTIATION | Price Not Disclosed | |
| 29 Mar 2018 | SOLD | $605,000 | |
| 24 Jan 2018 | ASKING PRICE | Price Not Disclosed | Ron Wray of Barfoot & Thompson Ltd Swanson Licensed: Reaa 200 |
| 4 Sep 2017 | ASKING PRICE | Price Not Disclosed | Philip Davis of Barfoot & Thompson Ltd City Office Licensed: Reaa |
| 10 Aug 2016 | ASKING PRICE | Price Not Disclosed | Emma Craig of Loyal Realty Limited Mreinz |
| 2 Feb 2001 | SOLD | $116,000 | |
| 15 Jul 1987 | SOLD | $80,000 |
Lot 118 Deposited Plan 82966
There are no similar properties in the area that are listed for sale or recently sold.