
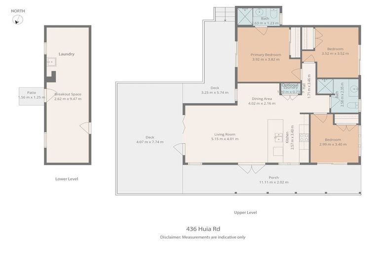
436 Huia Road, Laingholm, Auckland, 0604 is a Residential property built in 1959 with 3 bedrooms, 2 bathrooms and 0 parking spaces. The property is estimated to be valued in the range of $800,000 to $900,000.
It is unknown when the property was last sold or how much it was sold for. On 1 May 2024, 436 Huia Road, Laingholm, Auckland, 0604 had a Rating Valuation with a Capital Value of $900,000, Land Value of $550,000 and Improvement Value of $350,000.
| Date | Type | Price | Agent/Agency |
|---|---|---|---|
| 16 Apr 2026 | BY NEGOTIATION | Price Not Disclosed |
Lot 10 Deposited Plan 39710
There are no similar properties in the area that are listed for sale or recently sold.