
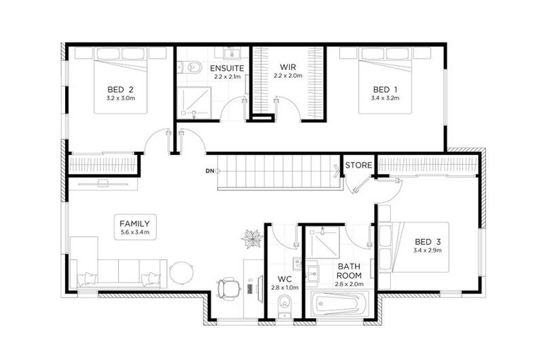
42 Clark Road, Hobsonville, Auckland, 0616 is a Residential property built in 2022 with 4 bedrooms, 2 bathrooms and 0 parking spaces. The property is estimated to be valued in the range of $1,200,000 to $1,300,000.
The property last sold on 19 March 2023 for $1,175,000. It was sold by Fletcher Living. On 1 May 2024, 42 Clark Road, Hobsonville, Auckland, 0616 had a Rating Valuation with a Capital Value of $1,225,000, Land Value of $645,000 and Improvement Value of $580,000.
| Date | Type | Price | Agent/Agency |
|---|---|---|---|
| 19 Mar 2023 | SOLD | $1,175,000 | Daniel Marcora of Fletcher Living |
| 19 Mar 2023 | SOLD | $1,175,000 | |
| 9 Mar 2023 | ASKING PRICE | $1,249,000 | Daniel Marcora of Fletcher Living |
| 9 Mar 2023 | ASKING PRICE | $1,249,000 | Daniel Marcora of Fletcher Living |
| 29 Nov 2022 | ASKING PRICE | $1,299,000 | Susan Annett of Fletcher Living |
Lot 83 Deposited Plan 549885
There are no similar properties in the area that are listed for sale or recently sold.