
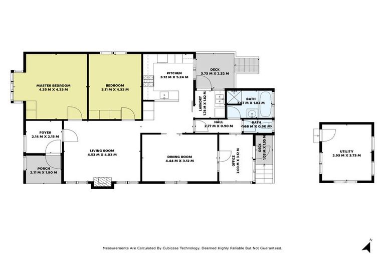
16 Egremont Street, Belmont, Auckland, 0622 is a Residential property built in 1935 with 3 bedrooms, 1 bathroom and 1 parking space. The property is estimated to be valued in the range of $1,300,000 to $1,400,000.
The property last sold on 1 May 2025 for $1,400,000. On 1 May 2024, 16 Egremont Street, Belmont, Auckland, 0622 had a Rating Valuation with a Capital Value of $1,275,000, Land Value of $1,200,000 and Improvement Value of $75,000.
| Date | Type | Price | Agent/Agency |
|---|---|---|---|
| 1 May 2025 | SOLD | $1,400,000 | |
| 6 Dec 2023 | SOLD | $1,256,889 | |
| 6 Nov 2023 | ASKING PRICE | $1,150,000 | Ian Cunliffe of Harcourts Cooper & Co - Devonport, (Licensed: Reaa 2008) |
Lot 11 Deposited Plan 6885
There are no similar properties in the area that are listed for sale or recently sold.