
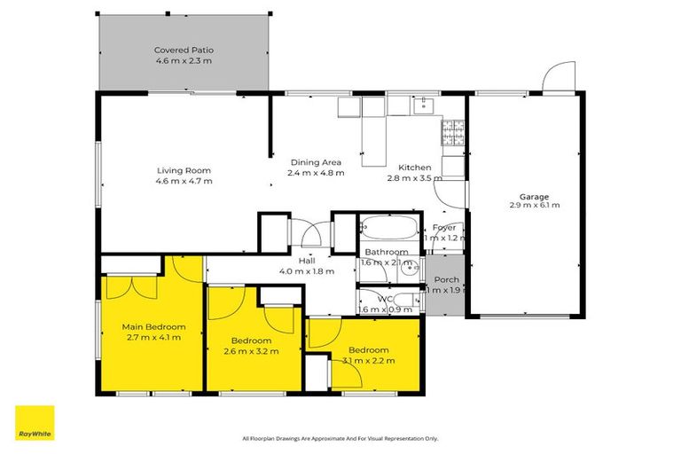
27 Robertson Road, Favona, Auckland, 2024 is a Residential property built in 2001 with 3 bedrooms, 1 bathroom and 1 parking space. The property is estimated to be valued in the range of $700,000 to $750,000.
It is unknown when the property was last sold or how much it was sold for. On 1 May 2024, 27 Robertson Road, Favona, Auckland, 2024 had a Rating Valuation with a Capital Value of $750,000, Land Value of $390,000 and Improvement Value of $360,000.
| Date | Type | Price | Agent/Agency |
|---|---|---|---|
| 15 Apr 2026 | ASKING PRICE | Price Not Disclosed | Ben Palavi of Ray White Mangere (A T Realty Ltd), (Licensed: Reaa 2008) |
| 18 Sep 2013 | ASKING PRICE | Price Not Disclosed | Angeline Teo of Barfoot & Thompson Mreinz Otahuhu |
| 17 Sep 2013 | SOLD | $355,000 | Angeline Teo of Barfoot & Thompson Mreinz Otahuhu |
| 4 Aug 2006 | SOLD | $270,000 | |
| 21 Feb 2006 | SOLD | $235,000 | |
| 28 Nov 2002 | SOLD | $195,000 |
Lot 39 Deposited Plan 197731
There are no similar properties in the area that are listed for sale or recently sold.