
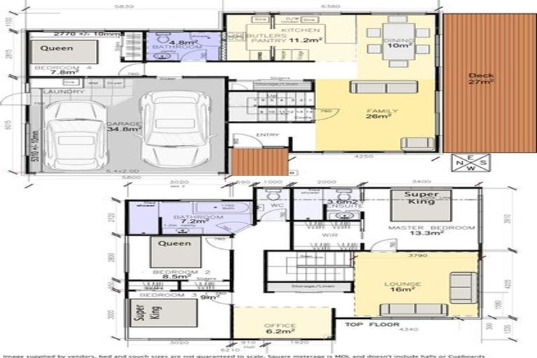
34b Bradbury Road, Botany Downs, Auckland, 2010 is a Residential property built in 2020 with 4 bedrooms, 3 bathrooms and 2 parking spaces. The property is estimated to be valued in the range of $1,300,000 to $1,400,000.
It is unknown when the property was last sold or how much it was sold for. On 1 May 2024, 34b Bradbury Road, Botany Downs, Auckland, 2010 had a Rating Valuation with a Capital Value of $1,275,000, Land Value of $680,000 and Improvement Value of $595,000.
| Date | Type | Price | Agent/Agency |
|---|---|---|---|
| 26 Nov 2024 | BY NEGOTIATION | Price Not Disclosed |
Lot 2 Deposited Plan 594135
There are no similar properties in the area that are listed for sale or recently sold.